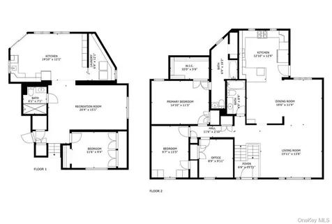
Welcome to your dream home in the highly sought-after Herricks School District! This luxurious property is a true gem, boasting stunning upgrades. From the new lighting to the beautiful stucco and professional landscaping, this home has it all. Step inside and experience the epitome of luxury living! This exceptional home features a spacious layout that provides ample room for entertaining and relaxation. As you enter, you'll be greeted by a bright and inviting living room, with large windows that allow natural light to pour in. The dining room is ideal for hosting dinner parties, while the stunning new kitchen is a chef's dream come true. In addition to the newer roof and water heater, this home also features three bedrooms on the upper level, including a main bedroom with a walk-in-closet and an en-suite full bathroom. An additional full bathroom is conveniently located on this level. The lower level is an entertainer's paradise, featuring a cozy den, another bedroom, along with a full bathroom and a wet bar. But that's not all - step outside and enjoy the gorgeous new patio, perfect for outdoor gatherings and summer entertainment. A 2-car garage offers plenty of storage . Experience luxury living at its finest with this stunning move-in ready property waiting for you to make it your own. Don't miss your chance to own this exceptional piece of real estate.

Property Details of 93 Searingtown Road

Property Details

Interior Features

Utilities and Appliances

Community

Other Details

Map Location

Driving Directions

Listings courtesy of OneKey® MLS as distributed by MLS GRID. Based on information submitted to the MLS GRID as of January 23, 2026 9:49 PM EST. All data is obtained from various sources and may not have been verified by broker or MLS GRID. Supplied Open House Information is subject to change without notice. All information should be independently reviewed and verified for accuracy. Properties may or may not be listed by the office/agent presenting the information. IDX information is provided exclusively for consumers’ personal noncommercial use and may not be used for any purpose other than to identify prospective properties consumers may be interested in purchasing. The data is deemed reliable but is not guaranteed by MLS GRID. The use of the MLS GRID Data may be subject to an end user license agreement.

Hi there! How can we help you?

Contact us using the form below or give us a call.

Send Us A Message:

I agree to receive marketing and customer service calls and text messages from East Egg Realty. To opt out, you can reply 'stop' at any time or click the unsubscribe link in the emails. Consent is not a condition of purchase. Msg/data rates may apply. Msg frequency varies. Privacy Policy.

Do not fill in this field:

This site is protected by reCAPTCHA and the Google Privacy Policy and Terms of Service apply.

Hi there! How can we help you?

Contact us using the form below or give us a call.

Send Us A Message:

Do not fill in this field:

This site is protected by reCAPTCHA and the Google Privacy Policy and Terms of Service apply.

Hi there! How can we help you?

Contact us using the form below or give us a call.

Send Us A Message:

Do not fill in this field:

This site is protected by reCAPTCHA and the Google Privacy Policy and Terms of Service apply.

Do not fill in this field:

This site is protected by reCAPTCHA and the Google Privacy Policy and Terms of Service apply.

Do not fill in this field:

This site is protected by reCAPTCHA and the Google Privacy Policy and Terms of Service apply.

Do not fill in this field:

This site is protected by reCAPTCHA and the Google Privacy Policy and Terms of Service apply.

$

Do not fill in this field:

This site is protected by reCAPTCHA and the Google Privacy Policy and Terms of Service apply.